Allproof passive fire products have been tested on plumbing and electrical service penetrations. To assist with product research and technical information our test literature has been presented in documents relevant to the service penetration that requires fire rating.
Low Profile Fire Collars
Low Profile Fire Collars
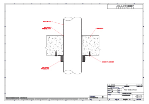
Allproof Low Profile Fire Collars are engineered to provide a fire-rated seal for plastic plumbing pipes, air conditioning services, and electrical conduits passing through walls and floors. Designed with advanced intumescent technology, these collars expand rapidly under extreme heat, sealing the penetration to maintain fire integrity and insulation. Their ultra-compact 27mm height for 25–80mm pipes makes them ideal for tight spaces and stack or floor waste systems. Tested to AS1530.4 and AS4072.1, they are suitable for concrete floors, composite floors, and plasterboard walls, with versatile mounting options for face-fixed or inverted installations.
Features:
-
- Fire-rated for plumbing, electrical, and AC services
- Compact 27mm collar height for 25–80mm pipes
- Advanced intumescent technology with fast activation
- Galvanised or stainless steel casing with fixing tabs
- Tested to AS1530.4 and AS4072.1
- Suitable for concrete, composite floors, and plasterboard walls
- Flexible installation options (face fixed or inverted)
Subscribe for Product Updates
Suitable For Fitting To:
- Concrete floors
- Hollow core construction floors
- Rib & timber / ply infill floors
- Composite floors
- Cross laminated timber floors
- Plasterboard ceilings
- Concrete, masonry walls
- Cross laminated timber walls
- Plasterboard walls
- Speedpanel walls
- Hebel Powerpanel walls
Features:
- Totally unaffected by water
- Unique low profile design (25-80mm)
- Tested on PVC socket connections for floor stack installations (40-100mm)
- Stainless or galvanized steel case
- Retro fitting – easy install slide tab
- For use on various plastic pipes
Installation Instructions:
-
- Ensure substrate around pipe is flat and free from obstructions.
- Open pipe collar and position around pipe.
- Slide tab through slot in pipe collar and fold back 180° to secure.
- Secure pipe collar into concrete by using M6 masonry anchors or expanding metallic bolts. Install pipe collars into plasterboard using expanding hollow core wall anchors. Do not use fixings which rely on plastic or nylon components for grip.
- Install only from underside on floor penetrations. Install pipe collar on both sides for wall penetrations.



































