Allproof passive fire products have been tested on plumbing and electrical service penetrations. To assist with product research and technical information our test literature has been presented in documents relevant to the service penetration that requires fire rating.
Drop In Fire Collar
Drop In Fire Collar
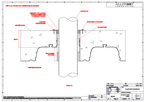
Allproof Drop-In Fire Collars are designed for fast and effective fire rating of plastic plumbing pipe penetrations in thin concrete and composite steel tray floors. These collars provide a simple solution for floors with complex profiles on the underside, where conventional underside-mounted collars are difficult to install. Drop-In Fire Collars are installed entirely from the top of the slab, streamlining installation and improving on-site safety and efficiency.
The collar features an advanced intumescent material encased in a galvanised steel body with extendable fixing tabs, allowing secure attachment at varying slab depths and profiles. When exposed to fire, the intumescent expands rapidly, sealing around the pipe as it deforms, maintaining fire integrity and insulation. Tested to AS1530.4 and AS4072.1, this system is ideal for both stack and floor waste penetrations.
Features:
-
- Designed for thin concrete and composite steel tray floors
- Top-side installation for easier and safer setup
- Extendable fixing tabs for profile flexibility
- Intumescent material for rapid fire-sealing response
- Galvanised steel casing for durability and heat conduction
- Tested to AS1530.4 and AS4072.1 for compliance
- Suitable for stack and floor waste penetrations
Subscribe for Product Updates
Extendable 210 - Drop In Fire Collar
Extendable 300 - Drop In Fire Collar
Suitable For Fitting With:
- Thin concrete floors (minimum 70mm)
- Trapezoidal steel tray concrete floors (composite floors)
Features:
- Installed and fixed from top side of slab
- Can be retrofit around pipe
- Made from Galvanised steel
Installation Instructions:
- Core drill hole to specified diameter to suit pipe size.
-
Install drop in fire collar fixing with two metal pin anchors. (Floor waste installs require the tabs to be recessed into the slab).
-
Ensure collar on underside of slab is exposed no greater than 80mm and recessed in slab no more than 5mm.
- Insert pipework through collar.
- Seal gaps between concrete/collar and collar/pipe with 15mm depth of Allproof MAS310 or Bostik Fireban One intumescent sealant.
-
Allproof recommends any thermal or acoustic lagging maintains a 50mm separation to the fire collar.
Fire-Penetration-Schedule.xlsx























